(Photo: © Johann Schum Aufzugtechnik)

New product line Mars2000

News

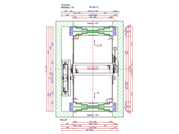
Following the product line Mars1000, Johann Schum Aufzugtechnik has now expanded what it has on offer with the product line Mars2000. The centrally-guided lift covers loads from 1,000 to 2,000 kg.

The new product line made optimal use of the room in the shaft and could dispense with wall recesses for pulley carriers, the company emphasised.

In Mars2000, as familiar from Mars1000, flexible car dimensions could be selected and various door series from Fermator, Meiller and Riedl used with the corresponding options. For control panels, numerous versions of the Schaefer Slimline product line were available in the standard version for the control panels.

Digital networking is possible

Photo: © Johann Schum AufzugtechnikPhoto: © Johann Schum Aufzugtechnik

When combined with the New Lift controller and monitoring system, the lift could be digitally networked and remotely monitored. When using the Elevision software, the lift status, among other things, could be queried and preventive maintenance offered to the customer.

Thanks to the integration of the production line in the Marsdesigner, a customised lift including offer price, could also be configured for this version in the calculation tool and an automated parametric lift drawing and car developed view be created.

On request, the Marsdesigner is available to customers who require several lifts a year and make their own calculations.

More information: schum-aufzugtechnik.de/mars2000

This might interest you as well: